Do wynajęcia dom w Ostrołęce ul. Platynowa
Ostrołęka Pokaż na mapie ›
Dodane: Czwartek, 12 Luty, 2026 13:17
4 500 zł
Szczegóły ogłoszenia
- Kategoria: Domy / Do wynajęcia
- Powierzchnia:200 m2
- Sprzedaż:Pośrednik
- Cena: 4 500 zł
Opis oferty
Do wynajęcia dom w Ostrołęce ul. PlatynowaOferuję do wynajęcia przestronny dom wolnostojący o powierzchni całkowitej ok. 200 m², zlokalizowany w spokojnej i zielonej części Ostrołęki, przy ul. Platynowej.
Układ pomieszczeń:
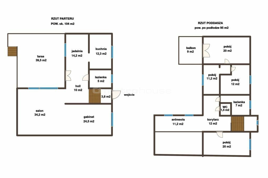
Parter ok. 104 m²
- salon (34,2 m²) z wyjściem na duży taras (39,5 m²),
- jadalnia (14,2 m²),
- kuchnia (12,3 m²) wyposażona w zmywarkę, lodówkę i piekarnik,
- gabinet (24,5 m²),
- łazienka (5 m²),
- holl oraz wiatrołap.
Poddasze pow. po podłodze 95 m²
- 4 pokoje (20 m², 20 m², 12 m², 11,2 m²),
- łazienka (7 m²), dodatkowe WC,
- antresola z widokiem na salon,
- balkon (9 m²).
- garaż z miejscem na dwa auta + kanał
- 2 miejsca parkingowe przed budynkiem
Atuty nieruchomości:
- dom w całości podpiwniczony,
- dostępny garaż,
- ogrzewanie miejskie,
- duża przestrzeń idealna dla rodziny,
- jasne i ustawne pomieszczenia,
- atrakcyjna antresola z widokiem na salon,
- zadbany taras i balkon,
- spokojna okolica z szybkim dojazdem do centrum Ostrołęki,
- dom w pełni wyposażony w podstawowe meble (m.in. zestaw wypoczynkowy, stół z krzesłami, fotele).
Lokalizacja:
Cicha i zielona dzielnica Ostrołęki ul. Platynowa. W pobliżu sklepy, szkoła, przystanek komunikacji miejskiej oraz tereny rekreacyjne.
Czy wiesz, że możemy przygotować dla Ciebie prezentację on-line nieruchomości? Skontaktuj się z naszym Agentem i zapytaj o szczegóły.
Pomimo, iż Doradcy Metrohouse przykładają szczególną staranność do rzetelnego prezentowania informacji o nieruchomości, nie zawsze jest możliwa weryfikacja wszystkich danych przekazanych od osób trzecich. Niniejsza prezentacja oferty nie jest ofertą w rozumieniu Kodeksu Cywilnego i ma charakter wyłącznie informacyjny.
Sprawdź zainteresowanie tym ogłoszeniem
Wyświetlenia
Data dodania
Ostatnio widziany
Obserwujących
Wysłane zapytania
Odsłony telefonu
Powiadom o podobnych ogłoszeniach
Lokalizacja: Ostrołęka
Kategoria: Nieruchomości » Domy » Do wynajęcia
Cena: od 4000 zł do 5000 zł Powierzchnia : od 170 m2 do 230 m2
Chcę otrzymywać powiadomienia o nowych ofertach
- Wypromuj ogłoszenie
- Zgłoś naruszenie
- Drukuj ulotkę
- Edytuj/usuń ogłoszenie
- Udostępnij ogłoszenie
- Dodaj na Facebook
































